Stationsstraat , 1861 Wolvertem

A propos de ce projet

La résidence "HET KASTEEL" compte 18 appartements. L'architecture est contemporaine.  "HET KASTEEL" sera une demeure pour des personnes agées, ainsi que pour des jeunes familles. Cette nouvelle résidence est également attrayante pour les investisseurs en termes de rendement, pour la raison de l'efficacité énergétique associée à des factures d'énergie plus faibles. Les immeubles BEN (Presque-Energie-Neutral) sont attractifs sur le marché locatif et offrent également une meilleure valeur. Tous les appartements disposent d'un jardin ou d'une terrasse, orientée sud. Il y a un bon mix d'appartements plus petits et plus grands, chaque avec leur propre charactère, plein de luminosité et avec espace extérieur privatif. Les façades sobres, contemporaines et minimalistes ayant de grandes fénêtres garantissent une ambiance de lumière et d’espace. Les briques de façade combinées avec quelques accents en bois rendent l’immeuble encore plus attrayant. Le projet aura également un espace vert commun avec un abri de vélo et le sous-sol contiendra 28 emplacements de voiture et 18 caves privatives.  Pour plus d'informations, vous pouvez toujours contacter notre bureau: immo@kantoorleemans.be - 02/306.90.00
Façade
Niveau 0
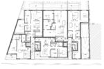
Niveau 1
Niveau 2
Niveau 3
Niveau 4

Rez-de-chaussez

Description Slaapkamers Oppervlakte Tuin Terras Plan Prijs
Rez-de-chaussée - ref.: Appartement 0.1 2 81,50 m² 10,40 m² / Vendu
Rez-de-chaussée - ref.: Appartement 0.1 - casco 2 81,50 m² 10,40 m² / Vendu
Rez-de-chaussée - ref.: Appartement 0.2 1 71,50 m² 8,50 m² / Vendu
Rez-de-chaussée - ref.: Appartement 0.3 2 108,00 m² 60,00 m² 20,00 m² / Vendu
Rez-de-chaussée - ref.: Appartement 0.4 2 121,00 m² 76,00 m² 24,00 m² / Vendu
Rez-de-chaussée - ref.: 4130198 2 108,00 m² 60,00 m² 20,00 m² / Vendu
Appartement exceptionnel - ref.: Appartement 1.1 1 68,00 m² 8,00 m² / Vendu
Appartement exceptionnel - ref.: Appartement 1.2 2 68,00 m² 8,00 m² / Vendu
Appartement exceptionnel - ref.: Appartement 1.3 2 68,00 m² 8,00 m² / Vendu
Appartement exceptionnel - ref.: Appartement 1.4 2 68,00 m² 8,00 m² / Vendu
Appartement exceptionnel - ref.: Appartement 1.5 2 68,00 m² 8,00 m² / Vendu
Appartement exceptionnel - ref.: Appartement 2.1 2 104,00 m² 10,60 m² / Vendu
Duplex - ref.: Appartement 3.3 3 135,00 m² 16,20 m² / Vendu

Prendre contact

Vous devez entrer votre prénom.
Vous devez entrer votre nom.
Vous devez entrer votre e-mail.
Vous devez entrer un question.
.

Votre courtier

Dries Leemans
Dries Leemans
Leemans immobilliën
0497 13 24 80 dries@kantoorleemans.be