- nouveau
- Maison unifamiliale
- € 330.000
Fabriekstraat 76,
1770 Liedekerke
1770 Liedekerke
- 4
- 329 m²
- 770 m²
- 1 garages
A propos de ce bien
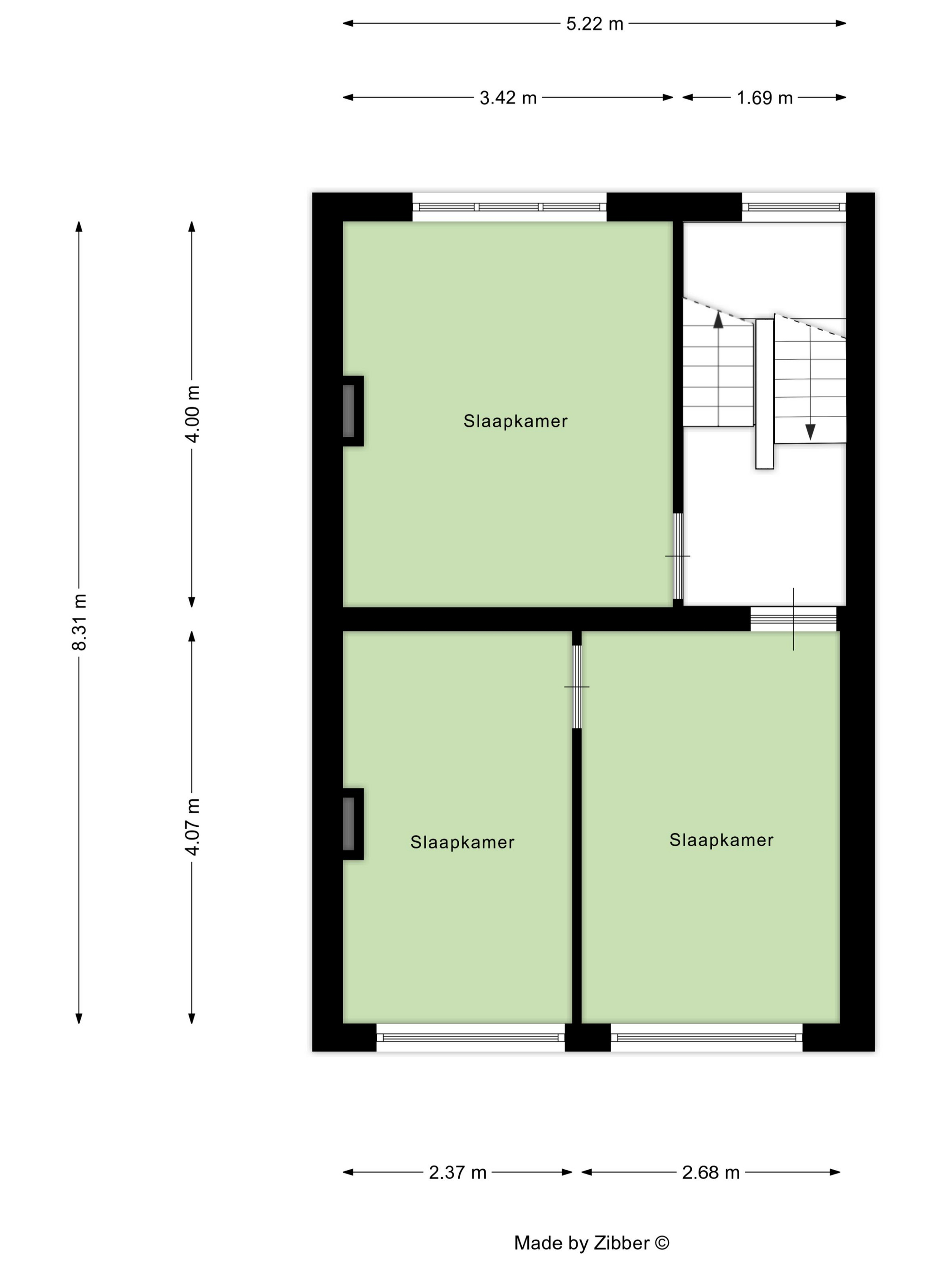
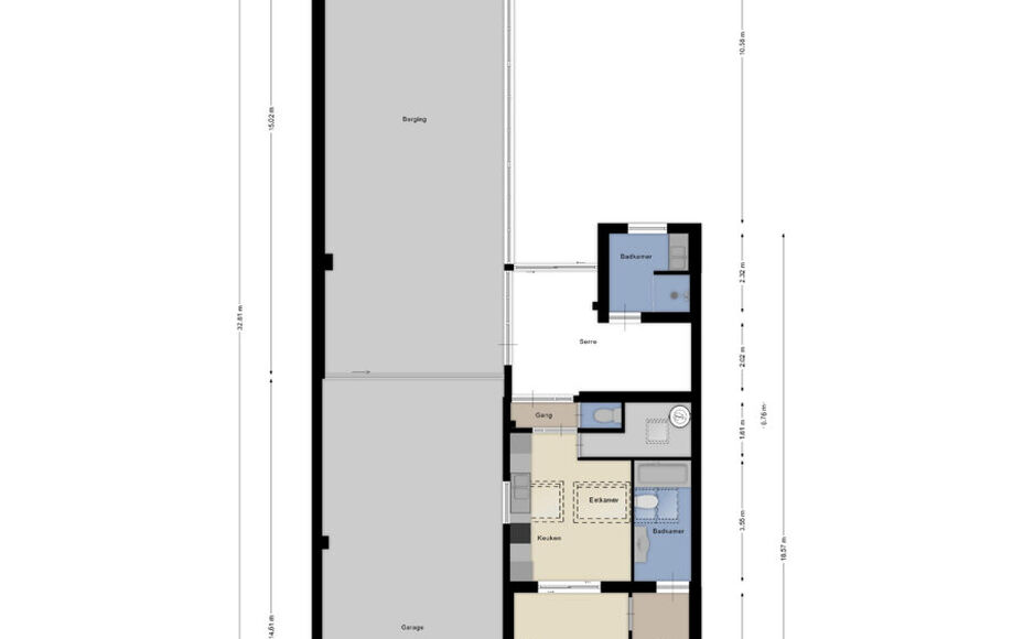
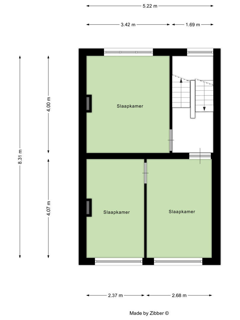
!!!OPBRENGSTEIGENDOM MET ENORM POTENTIEEL!!! Ideale combinatie wonen/werken. Dit gebouw bestaat énerzijds uit een magazijnruimte met sectionaal poort van maar liefst 174m² dewelke dienst kan doen als stockageruimte/magazijn/werkplaats maar eveneens kan ontwikkeld worden (projectgrond) met als toekomstige configuratie: handelszaak op het gelijkvloers en een nieuw te bouwen duplex appartement. Deze stockageruimte betreft een volledige open ruimte dewelke naar keuze nog kan ingedeeld/opgedeeld worden. Daarnaast is er eveneens een zéér ruime ééngezinswoning (bew. opp. van 155m²) met een afzonderlijke inkom. Indeling ééngezinswoning: GV: inkomhal met vestiaire, ruime leefruimte met salongedeelte, afzonderlijke keuken, 2 waterclosets, ruime berging/douchekamer, uitgeruste badkamer, veranda met zicht op het terras en de tuin. 1ste VD: nachthal met 3 ruime slaapkamers. 2de VD: 2 slaapkamers (met vaste trap). INVESTERINGSPAND MET UITERST GUNSTIGE VISIBILITEIT. Meer inlichtingen te verkrijgen op kantoor. dries@kantoorleemans.be - 0497/13.24.80. BEZOEKEN OP AFSPRAAK.
-
Informations financières
- prix
- € 330.000
- revenu cadastral
- € 1.140
- immeuble de rapport
- oui
- reference
- 7194839
- disponible
- A l'acte
-
Informations générales
- année de construction
- 1931
- année de rénovation
- 1990
- construction
- 3 façades
- garages
- 1
- égouts
- oui
-
Dimensions
- superficie terrain
- 770,00 m²
- surface habitable
- 329,00 m²
- largeur front de rue
- 10,35 m
-
Confort
- raccordement à l'eau
- oui
- connexion électrique
- oui
-
Presciptions urbanistiques
- affectation
- Zone d'habitat
- droit de préemption
- non
- permis de bâtir
- oui
- permis de lotir
- non
- jugements
- non
- intimation en justice
- non
-
Simulateur de crédit
-
Emplacement
- autoroute à
- 1.000,00 m
- transports publics à
- 100,00 m
- école à
- 500,00 m
- commerces à
- 750,00 m
- centre sportif à
- 500,00 m
-
Energie
- peb
- 950 kWh/m²
- peb numéro
- 20221017-0002693005-RES-1
- certificat d'électricité;
- oui
- électricité conform
- non
Prendre contact
Assurance incendie
à partir de €200/année
Même si l’assurance incendie n’est pas légalement obligatoire, il est néanmoins recommandé de vous couvrir contre les dommages causés à votre habitation. L’assurance incendie est l’assurance dommages la plus populaire: pas moins de 95% des propriétaires en Belgique en ont une.
Plus d’infos Votre assurance familiale
à partir de € 83,46 / année
Il n’est pas obligatoire de souscrire une assurance familiale. En Belgique, pourtant, presque tout le monde en a une. Elle est indispensable dans toute famille, même si vous n’avez pas d’enfants. Un petit accident peut en effet être lourd de conséquences. Imaginez que la victime devienne invalide: il est possible que vous deviez payer toute votre vie! C’est précisément dans ce genre de cas que la Police familiale KBC vous protège, et ce, pour une prime relativement peu élevée.
Télécharger l’offre Plus d’infos